A well proportioned three bedroom semi detached home close to local amenities including Stevens park. This lovely family home benefits from gas central heating, double glazing and briefly offers; entrance hall, lounge, open plan kitchen diner with appliances and patio door to garden, landing,...
Close to Merry Hill Intu Shopping Centre and Russells Hall Hospital
EPC - D / CT Band - C
Property Description
A well proportioned three bedroom semi detached home close to local amenities including Stevens park.
This lovely family home benefits from gas central heating, double glazing and briefly offers; entrance hall, lounge, open plan kitchen diner with appliances and patio door to garden, landing, three bedrooms and a family bathroom.
Off road parking to front leading to the a garage and rear garden laid to lawn with decked patio area. EPC - D / CT Band - C.
Porch
Door leading into:
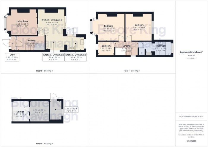
Entrance Hall
Door to front. Stairs to first floor with understairs storage. Laminate flooring.
Lounge
Bay window to front. Electric fire with wooden surround. Laminate flooring.
Refitted Kitchen Diner
Dining area: Patio doors to garden, window to side and rear. Electric Fire with wooden surround. Laminate flooring.
Kitchen area: Good range of eye and low level units incorporating: 1 1/2 bowl stainless steel sink and drainer, built in gas hob with extractor over, integrated electric oven and fridge freezer. Plumbing and space for a washing machine. Cupboard housing boiler. Laminate Flooring. Side door.
Landing
Window to side.
Bedroom One
Bay window to front.
Bedroom Two
Window to rear.
Bedroom Three
Sliding door and window to front.
Bathroom
Window to rear. Four piece suite comprising: roll top bath with mixer shower over, shower cubicle, wash hand basin and low level WC. PVC paneling. Loft access.
Outside
FRONT: Off road parking to front with side access to the garage.
REAR: Laid to lawn with decked patio area. Additional space available behind the garage with a storage shed installed. Additional land available also forming the rear boundary.
Garage
Access via the side and via up and over door to front. Split into three separate compartments currently. Ideal for storage purposes. Power and lights installed.
Freehold
We are advised by the vendor that the property is freehold. Bloore King and Kavanagh would stress that we have not checked the legal documents to verify the status of the property. A buyer is advised to obtain verification from their solicitor or surveyor.
Brochure Declaration
FIXTURES AND FITTINGS: Only those items specifically mentioned in these sales particulars are included within the sale price. However, the fitted carpets, curtains, light fittings and other items (if any), whilst not included, are negotiable. B K and K have NOT tested any apparatus, equipment, fixture or fitting and so cannot verify they are in working order or fit for their purpose. The buyers are advised to obtain verification from their solicitor or surveyor. CONSUMER PROTECTION REGULATIONS 2008: These particulars have been prepared with care and approved by the vendors (where possible) as correct, but are intended as a guide to the property only, with measurements being approximate and usually the maximum size which may include alcoves, recesses or otherwise as described and you must NOT rely on them for any other purpose. The appearance of an item in any photograph does not mean that it forms part of the property or sale price. Always contact the appropriate branch for advice or confirmation on any points. PLANNING PERMISSION/ BUILDING REGULATIONS: Any reference to the property being extended, altered or converted in any way does not infer that planning permission or building regulations have been granted or applied for, nor do B K and K accept any responsibility for such not having been obtained. Prospective purchasers should always seek verification from their solicitor or surveyor on these aspects. REFERRAL FEES: We refer clients to a number of service providers for various reasons within the scope of our terms, in line with our business and with the client’s permission (GDPR 2018). It is your decision whether you choose to deal with any of the companies we recommend however you should be aware that some of these companies provide Bloore King & Kavanagh with a referral fee for recommending them. Referral fees are a maximum of £175.
Material Information
Material A
Tenure: Freehold
Council Tax Band: C
Material B
Water Supply: Mains
Electricity Supply: MainsSupply
Sewerage: Mains
Heating: Ask Agent
Internet: Ask Agent
Mobile: (Voice & data)
EE Limited Limited
Three Likely Limited
O2 Limited Limited
Vodafone Limited Limited
Parking: Ask Agent
Material C
Building Safety: Ask Agent
Restrictive Covenant: No
Other Restrictions: No
Last Flooding: No
Source of Flooding: Ask Agent
Flood Defences: No
Planning Permission/Development: Ask Agent
Accessibility: Loft Access - No, Other - Ask Agent