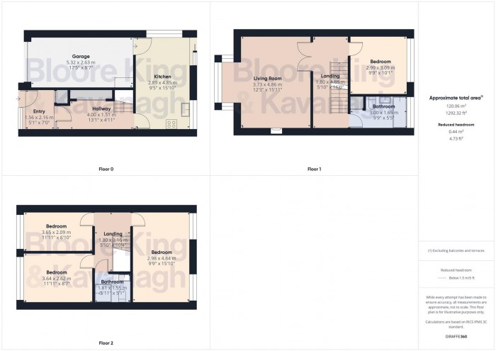
A superbly presented much improved three/four bedroomed, three storey, end terraced town house being situated in this cul de sac location on the Halesmere Estate within close proximity to Halesowen Town Centre and local amenities. The property comprises of entrance porch, reception hall with...
The property is situated at the very top of Abberton Close and has a significant block paved driveway to the front, offering off road parking for several cars. Side access and access to the porch and garage at the front.
Enclosed Porch
Tiled throughout. Built in storage cupboard housing gas meter. Internal door leading to:
Entrance Hallway
Carpeted throughout and offering built in storage on the left hand side. Stairs leading to first floor accommodation and internal door leading to:
Fitted Breakfast Kitchen
Tiled throughout, having windows to side and rear. Access available to the rear via sliding door and internal access to integral garage. A well presented range of eye level and base units incorporating: 1 1/2 resin sink and drainer unit, integral electric double oven and grill, four ring induction hob and fitted extractor hood over, an integrated microwave and an integral dishwasher.
Garage
Double doors opening to the front and benefitting from a smaller range of eye level and base units installed. Additional shelving installed also. Plumbing for a washing machine and wall mounted combi gas central heating boiler.
First Floor Landing
Doors leading to first floor bathroom and rear double bedroom. Double internal doors through to lounge. Stairs leading to second floor accommodation.
Lounge
Bay window to front. Electric fire installed with marble surround.
Bathroom
Tiled throughout. Rear window and built in airing cupboard. Three piece white bathroom suite comprising of: low level flush WC, pedestal wash hand basin and bath with mixer attachment installed over.
First Floor Bedroom
Double bedroom with large window to rear.
Second Floor Landing
Internal doors leading to three further bedrooms and shower room. Loft access available.
Shower Room
Tiled throughout with heated towel rail installed. Three piece white suite comprising of: low level flush WC, vanity unit wash hand basin and corner single shower cubicle with electric shower installed.
Bedroom One
Windows to rear. Built in fitted wardrobes installed.
Bedroom Two
Window to front.
Bedroom Three
Window to front.
Gardens
L-shaped patio area with several steps leading to the main garden mainly laid to lawn. Well maintained high shrubbery occupies the borders offering an element of privacy throughout. A shed and separate summer house. Side access to the property.
Freehold
We are advised by the vendor that the property is freehold. Bloore King and Kavanagh would stress that we have not checked the legal documents to verify the status of the property. A buyer is advised to obtain verification from their solicitor or surveyor.
Brochure Declaration
FIXTURES AND FITTINGS: Only those items specifically mentioned in these sales particulars are included within the sale price. However, the fitted carpets, curtains, light fittings and other items (if any), whilst not included, are negotiable. B K and K have NOT tested any apparatus, equipment, fixture or fitting and so cannot verify they are in working order or fit for their purpose. The buyers are advised to obtain verification from their solicitor or surveyor. CONSUMER PROTECTION REGULATIONS 2008: These particulars have been prepared with care and approved by the vendors (where possible) as correct, but are intended as a guide to the property only, with measurements being approximate and usually the maximum size which may include alcoves, recesses or otherwise as described and you must NOT rely on them for any other purpose. The appearance of an item in any photograph does not mean that it forms part of the property or sale price. Always contact the appropriate branch for advice or confirmation on any points. PLANNING PERMISSION/ BUILDING REGULATIONS: Any reference to the property being extended, altered or converted in any way does not infer that planning permission or building regulations have been granted or applied for, nor do B K and K accept any responsibility for such not having been obtained. Prospective purchasers should always seek verification from their solicitor or surveyor on these aspects. REFERRAL FEES: We refer clients to a number of service providers for various reasons within the scope of our terms, in line with our business and with the client’s permission (GDPR 2018). It is your decision whether you choose to deal with any of the companies we recommend however you should be aware that some of these companies provide Bloore King & Kavanagh with a referral fee for recommending them. Referral fees are a maximum of £175.
Property Description
A superbly presented much improved three/four bedroomed, three storey, end terraced town house being situated in this cul de sac location on the Halesmere Estate within close proximity to Halesowen Town Centre and local amenities.
The property comprises of entrance porch, reception hall with built in cloaks storage, fantastic fitted kitchen diner to ground floor, good sized lounge, second reception room/bedroom four and wonderful refitted bathroom to first floor, bedrooms one, two, three and shower room to second floor and having the benefit of gas central heating and double glazing where specified.
Benefiting from a corner plot advantage and having a large block paved driveway to the front, offering off road parking for several cars. The enclosed garden to the rear is beautifully presented and well maintained. EPC - D / CT Band - B
Material Information
Material A
Tenure: Freehold
Council Tax Band: B
Material B
Water Supply: Mains
Electricity Supply: MainsSupply
Sewerage: Mains
Heating: GasMains
Internet: Ask Agent
Mobile: (Voice & Data)
EE Likely Likely
Three Likely Likely
O2 Likely Limited
Vodafone Limited Limited
Parking: Ask Agent
Material C
Building Safety: Ask Agent
Restrictive Covenant: No
Other Restrictions: No
Last Flooding: No
Source of Flooding: Ask Agent
Flood Defences: No
Planning Permission/Development: Ask Agent
Accessibility: Loft Access - No, Other - Ask Agent